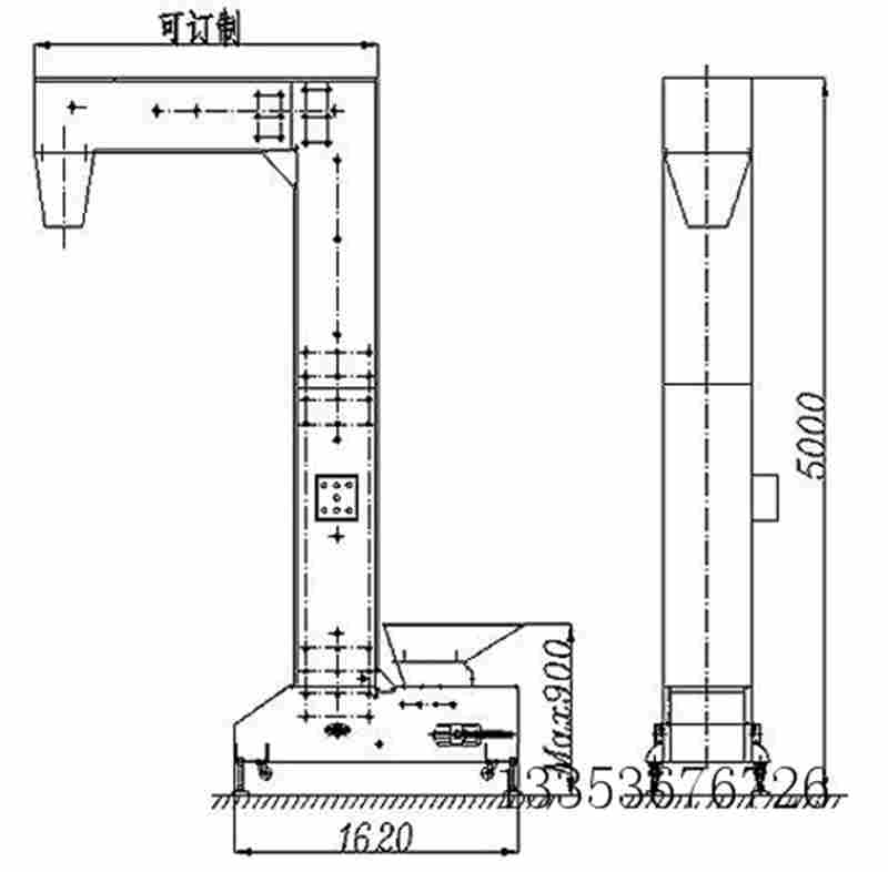
斗式提升機|Z型斗式提升機結構圖|技術參數
Z型翻斗式提升機簡介:
翻斗式提升機是河南奧創機械綜合行業多年技術經驗,研制生產的一種新型物料輸送設備。翻斗式提升機投放市場以來,得到用戶喜愛,已有數十套成功用于環境工程機械、冶金、化工、化肥等行業。
Z翻斗式提升機的機體主要結構形式:
Z翻斗式提升機主要組成形式有Z字型、C字型、混合型、水平型其工作原理及特點相同,都是用于水平——垂直——水平輸送粉狀、顆粒狀及小塊狀物料。其結構緊湊、占地面積小、提升高度大、密封性能好、物料無破損。本機載荷大便于保養。
本設備可廣泛應用于各種需要柔和處理的環境。Z型供料,C型供料,Z—C混合型供料及多點上料,多點下料等場合。目前多用于稱重包裝機的供料,色選機的供料及復選供料,自動化生產線的立體循環上下料,全自動稱重配料系統的多點供料。我們的產品目前正常運行在以下自動化生產產業中:寵物食品業,膨化食品業,飼料行業,糖果行業,干鮮果品業,保健食品業,糧食精加工處理業,化工醫藥業,五金電料業,軍工制造業等等。
Z翻斗式結構特征及工作原理
Z提升機主要由主軸裝置、調繩機構(雙筒)、盤形制動裝置、深度指示器、減速器、潤滑站、測速發電機裝置、聯軸器、電動機、操縱臺、液壓系統及電氣控制系統等部件組成。
當啟動主電機時,由電動機轉子通過低速聯軸器將動力傳遞到減速器的高速軸上,經過兩級齒輪傳動減速后,再由減速器的被動軸通過聯軸器傳遞給主軸裝置。若不斷改變電動機的轉向,可使卷筒進行纏繞或放松鋼絲繩,同時提升容器在井筒作上下往返,周期性運動。
Z型翻斗式提升機簡介
售后服務:
1、咨詢產品時,請附上具體的設備技術參數。由我司技術人員為您選擇和服務。
2、我司對產品設備有三包服務。如有不可抗拒的產品質量問題,可更換。
3、我司所售出的設備產品具有一年的免費保修服務。
4、專業技術員圖紙設計。
河南奧創斗式提升機結構圖紙繪畫、價格計算、廠家真機圖片展示,及到廠實地考察接待,歡迎實地考察!
訂購網址請登錄河南奧創機械有限公司官方網站:www.seekit.com.cn 24小時服務熱線:13353676726


