FZC系列振動放礦機(振動出礦機)
文章作者:奧創機械發布時間:2018/10/10 17:23:31瀏覽次數:
FZC系列振動出礦機(振動出礦機)是一種以振動電機為激振源的顛振型慣性振動出礦設備,廣泛適用于冶金、化工、建材、煤炭等礦業。是礦石及其它物料的放出,給料或裝車的理想設備。

☆產品特點
振動出礦機與其它形式的出礦機相比具有以下優點:
1.節省能源、出礦效率高、出礦均勻且易控制;
2.設備制造簡單,安裝工程量小,成本較低;
3.由于振動大減少了懸拱、卡礦現象;
4.能有效地防止含水量大的礦石跑礦;
5.應用范圍廣,適應性強。
☆使用條件
振動出礦機對環境條件要求如下:
1.環境溫度不大于+40℃;
2.空氣相對濕度不大于90%;
3.可用于多塵和臺極上載礦量有較動的場合。
☆型號說明:
FZC系列單臺板振動出礦機結構圖
FZC系列雙臺板振動出礦機結構圖
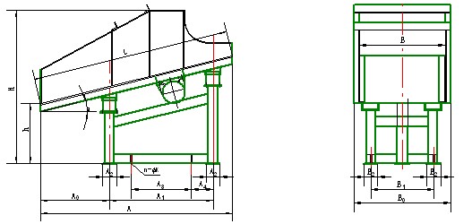
振動放礦機安裝示意圖
附注及說明
H-巷道高度 e-(B0-b3)÷2-b1
H1-礦車高度 E-查表二
B-巷道寬度 F-E+e
B0-礦車寬度 h-查表二
b1-伸入礦車深度(1/5~1/4) B0 h0-眉線高,(表一)
b2-臺面距礦車高度(100~200) h1-(H1+ b1)-h
b3-軌距 h2-(H1+ b2+S max×L)-h1
α-臺面傾角 h3-H1+ b2+S max-L
Q-眉線角 LA-查表
I-臺面長度 δ-45 °~55°
n-安裝余量(60~200) D-溜井(料斗)直徑
1.巷道頂點N,連接NM2制作峒室頂板。
2.設計中b2值應盡量小,減小物料對車箱的沖擊力。
3.前壁框架可用槽鋼制作。
4.振動出礦機底座用混凝土澆注而成。
FZC系列振動出礦機技術特性及埋設參數(表一)
系列振動出礦機結構及安裝尺寸
振動放礦機廠家提示:請通過正規渠道購買奧創振動放礦機,以保障您的合法權益!
訂購網址請登錄河南奧創機械有限公司官方網站: www.seekit.com.cn 24小時服務熱線:1 335 36 767 26
下一篇:CZQ(B)料倉振動防堵塞器上一篇:振動篩各種彈簧配套齊全


